Project Description

Project Overview: Remanufactured Herman Miller Action Office Workstations – Hunt Valley, MD

This was a repeat customer for Re-form. The customer had experienced a flood from the office above them. As a result of this, Re-form was tasked with cleaning panels and providing the remanufactured products as needed. All product was knocked-down and re-installed by the Re-form delivery and installation crew.

Remanufactured Herman Miller Action Office Series 2 with Power

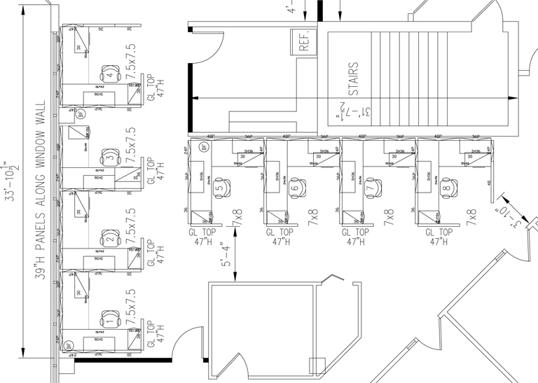
There were originally (12) Herman Miller Action Office Workstations of which (8) were damaged. There were (4) 7.5×7.5 and (4) 7×8 workstations and each contained an L shaped work area with a 2 drawer lateral file, BBF pedestal, and an overhead shelf. Panel heights were a combination of 39”, 48” and 62” H thru-out. The delivery and installation occurred during normal hours by the Re-form crew.

Panel Fabric = Duvaltex (Guilford of Maine) – Cosmopolitan Cornsilk

Worksurface = Wilsonart – Amber Cherry

Trim/Paint = MT (Medium Tone)

Tackboard Fabric = Duvaltex (Guilford of Maine) – Cadence Coral